
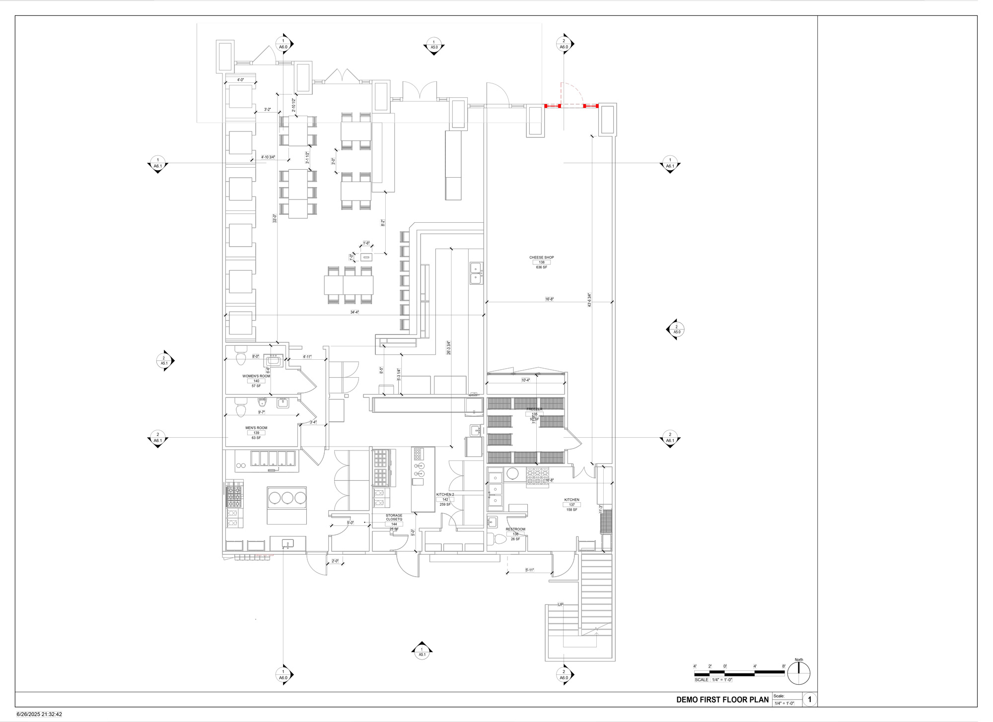
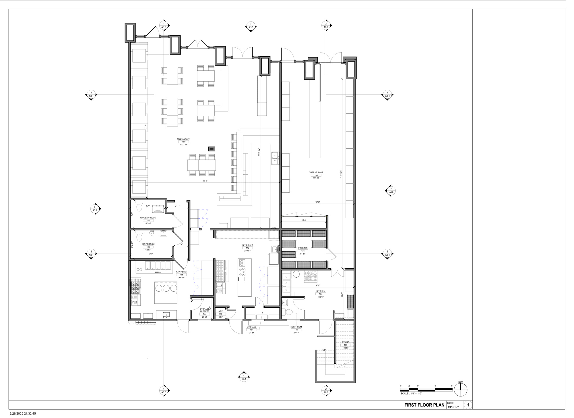
Avenida Mixed Use
Commercial with Multifamily Residential
We’re thrilled to be working on this exciting mixed-use project, which blends both residential and commercial spaces. Our goal is to enhance the functionality of the current commercial tenant areas, improving workflow and overall usability. At the same time, we're adding more residential units on the upper floors to create a vibrant, dynamic space that meets the needs of both businesses and residents. This project represents an incredible opportunity to seamlessly integrate living and working environments, while fostering a more connected community.
LOCATION
La Jolla, California
San Diego, CA
(619) 838-0808
Fresno, CA
(559) 440-9999
Stallion Development & Construction
LIC # 987801 : LIC # 1001656
Stallion Real Estate & Property Management
DRE # 01753422
Copyright © 2026 Stallion Companies.
All rights reserved. Privacy Policy | Terms of Use








