
La Jolla ADU
Design & Remodel
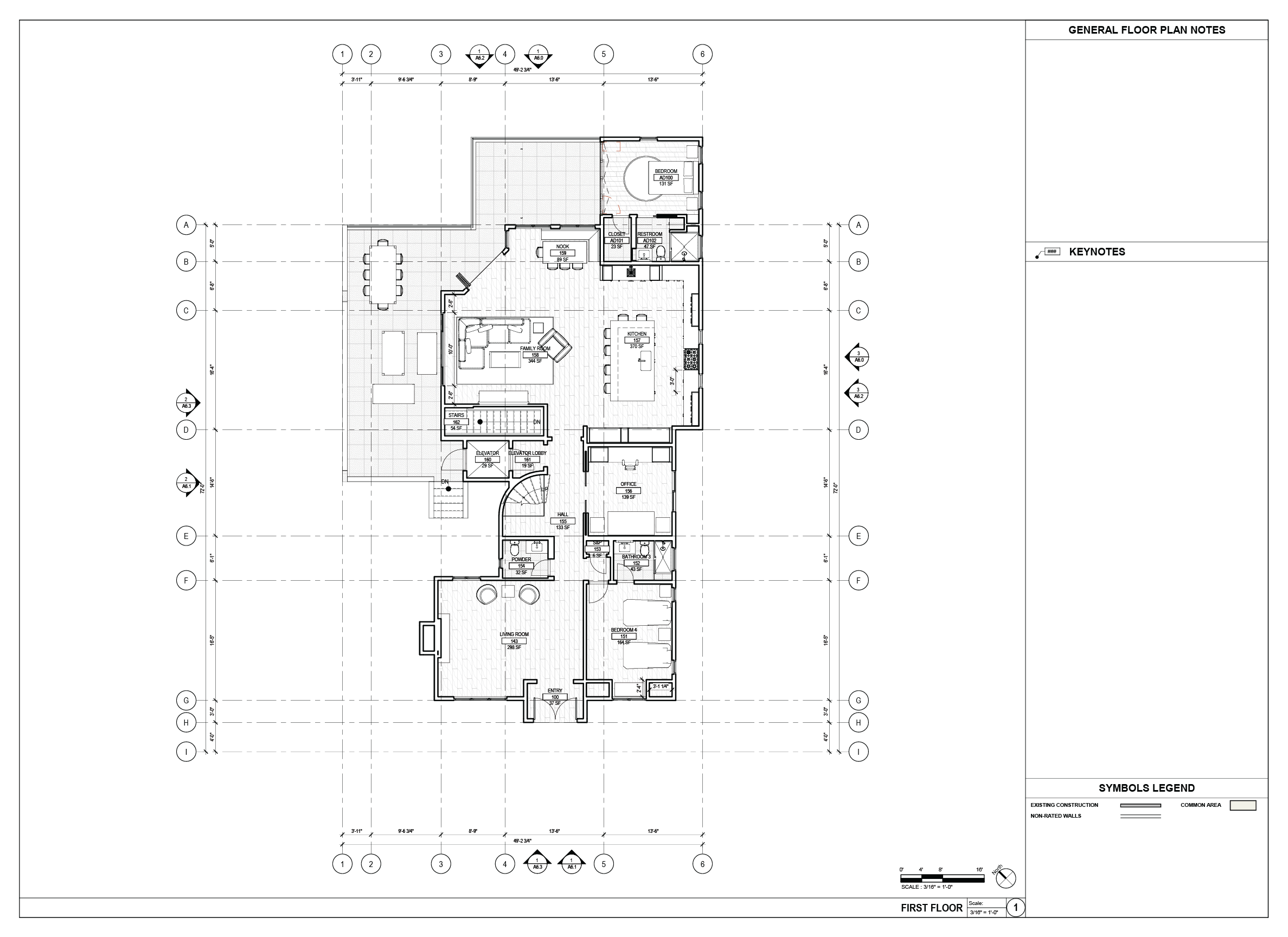
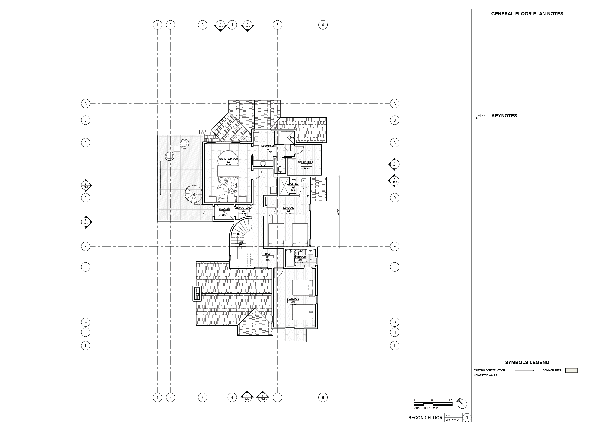
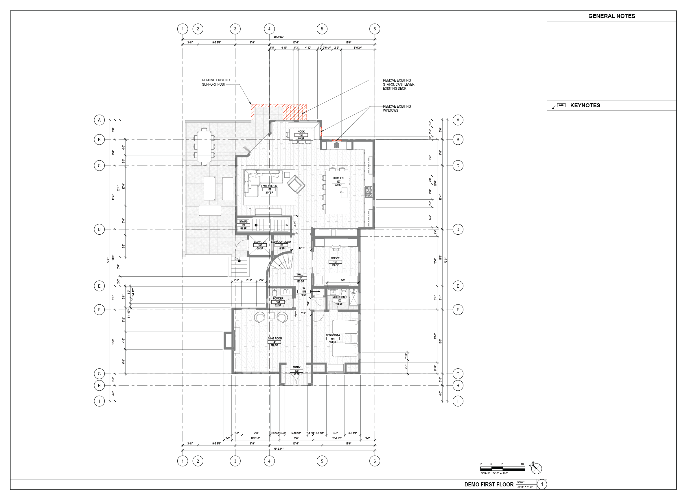
This project involves significant renovations and new construction at a residence in La Jolla, CA. Key elements include building a new retaining wall with waterproofing, installing floodlights for the driveway, and constructing a new driveway. An extended walkway and a new Accessory Dwelling Unit (ADU) will also be added. Existing support posts and stairs will be removed, and existing windows will be replaced. New construction includes a garage with an ADU above it, featuring a La Cantina sliding door.
LOCATION
La Jolla, California
San Diego, CA
(619) 838-0808
Fresno, CA
(559) 440-9999
Stallion Development & Construction
LIC # 987801 : LIC # 1001656
Stallion Real Estate & Property Management
DRE # 01753422
Copyright © 2026 Stallion Companies.
All rights reserved. Privacy Policy | Terms of Use





